Meppel – Eengezinswoningen R5

€ 349.000,-

De Commissaris krijgt 6 rijwoningen, deze tussenwoning van circa 77 m² is perfect voor starters, kleine gezinnen of wie graag een compacte, maar toch comfortabele woning zoekt. Door de speelse indeling voelt de woning ruim en licht aan.

Bouwjaar2026
Woonoppervlakte77 m2
Perceeloppervlakte79 m2
EnergielabelA+++
Slaapkamers2
Foto’s 7 Plattegronden 3

Omschrijving

De Commissaris krijgt 6 rijwoningen, deze tussenwoning van circa 77 m² is perfect voor starters, kleine gezinnen of wie graag een compacte, maar toch comfortabele woning zoekt. Door de speelse indeling voelt de woning ruim en licht aan.

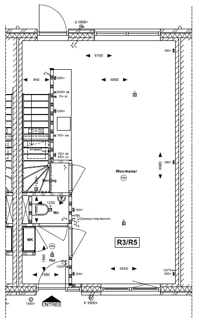
De hal geeft toegang tot de open woonkamer en keuken. Dankzij de slimme indeling blijft er voldoende ruimte voor een gezellige eethoek en een comfortabele zithoek. Achter de keuken is de trap naar boven gesitueerd, een creatieve plek die ruimte creëert in het woongedeelte. De keuken is niet bij de prijs inbegrepen, zodat je zelf de vrijheid hebt om deze volledig naar wens samen te stellen.
De woonkamer biedt direct toegang tot de ruime tuin, waar je volop kunt genieten van het buitenleven. In de tuin bevindt zich een praktische houten berging voor fietsen en tuingereedschap.

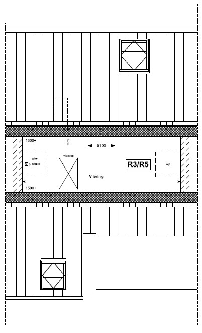
Op de eerste verdieping bevinden zich twee comfortabele slaapkamers van circa 11 m² en 9 m². De badkamer is modern ingericht en voorzien van een wastafel, douche en toilet. Op de overloop bevindt zich een praktische berging met ruimte voor de wasmachine en droger, handig en netjes uit het zicht. Via een vlizotrap is de vliering bereikbaar, die veel extra bergruimte biedt.

Kenmerken

Bouw
Type objectWoonhuis
Soort bouwNieuwbouw
Bouwjaar2026
Type dakZadeldak
IsolatievormenVolledig geïsoleerd
Oppervlaktes en inhoud
Perceeloppervlakte79 m2
Woonoppervlakte77 m2
Inhoud198 m3
Oppervlakte externe bergruimte5 m2
Tuinoppervlakte31 m2
Indeling
Aantal kamers3
Aantal slaapkamers2
Locatie
LiggingAan rustige weg, In centrum, In woonwijk
Tuin
Type tuinAchtertuin
OriënteringNoordoost
Heeft een achteromJa
Oppervlakte23 m2
Energieverbruik
EnergielabelA+++
CV ketel
CombiketelNee

Downloads

jpg

Meppel – Eengezinswoningen R5 – Plattegrond

Download
jpg

Meppel – Eengezinswoningen R5 – Plattegrond 2

Download
jpg

Meppel – Eengezinswoningen R5 – Plattegrond 3

Download

Andere bouwnummers

Verkocht onder voorbehoud

Meppel – Eengezinswoningen R1

€ 360.000,-

  • 77 m2
  • 83 m2
  • 2
Bekijk bouwnummer
Verkocht onder voorbehoud

Meppel – Eengezinswoningen R6

€ 365.000,-

  • 77 m2
  • 105 m2
  • 2
Bekijk bouwnummer
Verkocht onder voorbehoud

Meppel – Eengezinswoningen R4

€ 349.000,-

  • 77 m2
  • 79 m2
  • 2
Bekijk bouwnummer
Verkocht onder voorbehoud

Meppel – Eengezinswoningen R3

€ 349.000,-

  • 77 m2
  • 79 m2
  • 2
Bekijk bouwnummer
Verkocht onder voorbehoud

Meppel – Eengezinswoningen R2

€ 349.000,-

  • 77 m2
  • 79 m2
  • 2
Bekijk bouwnummer

Makelaar

  • Groenmarkt 4
  • 7941 KT Meppel