Meppel – Twee-onder-één-kap W2

€ 620.000,-

Deze prachtige twee-onder-één-kap woning, met een woonoppervlakte van 148 m², grenst aan de karakteristieke Commissaris de Vos van Steenwijklaan. Hier komen comfort en ruimte samen, ideaal voor gezinnen die houden van een slimme indeling en veel leefruimte.

Bouwjaar2026
Woonoppervlakte148 m2
Perceeloppervlakte254 m2
EnergielabelA++++
Slaapkamers3
Foto’s 7 Plattegronden 3

Omschrijving

Deze prachtige twee-onder-één-kap woning, met een woonoppervlakte van 148 m², grenst aan de karakteristieke Commissaris de Vos van Steenwijklaan. Hier komen comfort en ruimte samen, ideaal voor gezinnen die houden van een slimme indeling en veel leefruimte.

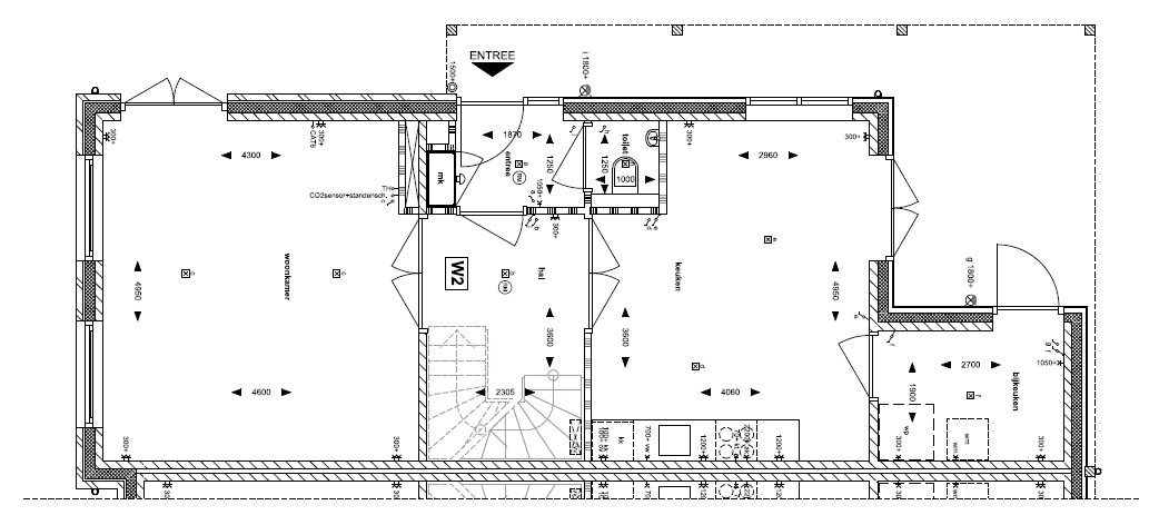
De woning heeft een doordachte plattegrond met een gescheiden woonkamer en keuken, waardoor je volop mogelijkheden hebt om te koken, eten en ontspannen. De keuken (zonder keukeninrichting) grenst aan een praktische bijkeuken welke ideaal is om voorraden, schoenen en jassen netjes op te bergen.

Vanuit de woonkamer heb je zicht op de levendige laan, terwijl de keuken met openslaande deuren uitkomt op de tuin, waar je in alle rust kunt genieten. De tuin is royaal van formaat, met een diepte van ruim 15 meter en een breedte van meer dan 7 meter.

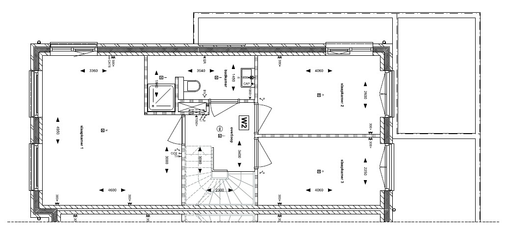
Op de eerste verdieping bevinden zich drie ruime slaapkamers en een moderne badkamer, compleet uitgerust met een wastafel, een inloopdouche en toilet. De indeling is praktisch en licht, waardoor iedere kamer een comfortabele en aangename plek is.

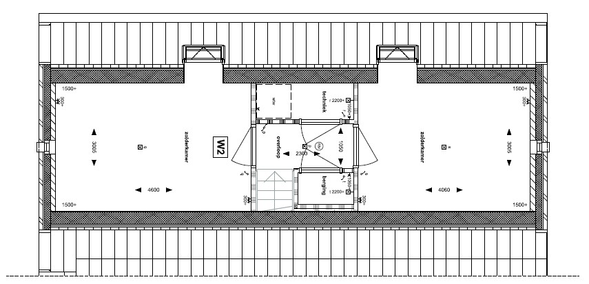
De zolderverdieping biedt nog extra flexibiliteit en ruimte. Hier is eenvoudig plaats voor twee extra slaapkamers, ideaal voor een groeiend gezin, of je kunt de zolder gebruiken als hobbyruimte, werkkamer of logeerkamer. Zo kan de woning moeiteloos meegroeien met jouw wensen en levensfase, en biedt het volop mogelijkheden om een thuis te creëren dat écht past.

Kenmerken

Bouw
Type objectWoonhuis
Soort bouwNieuwbouw
Bouwjaar2026
Type dakZadeldak
IsolatievormenVolledig geïsoleerd
Oppervlaktes en inhoud
Perceeloppervlakte254 m2
Woonoppervlakte148 m2
Inhoud388 m3
Oppervlakte externe bergruimte0 m2
Tuinoppervlakte182 m2
Indeling
Aantal kamers6
Aantal slaapkamers3
Locatie
LiggingIn centrum, In woonwijk
Tuin
Type tuinAchtertuin
OriënteringOost
Heeft een achteromJa
Oppervlakte120 m2
Energieverbruik
EnergielabelA++++
CV ketel
CombiketelNee

Downloads

jpg

Meppel – Twee-onder-één-kap W2 – Plattegrond 3

Download
jpg

Meppel – Twee-onder-één-kap W2 – Plattegrond 2

Download
jpg

Meppel – Twee-onder-één-kap W2 – Plattegrond

Download

Andere bouwnummers

Beschikbaar

Meppel – Twee-onder-één-kap W1

€ 580.000,-

  • 140 m2
  • 217 m2
  • 3
Bekijk bouwnummer

Makelaar

  • Groenmarkt 4
  • 7941 KT Meppel