Meppel – Appartementen A01

€ 345.000,-

Op de begane grond bevindt zich dit karaktervolle en lichte appartement, waar comfort en uitstraling samenkomen. Het appartement is gesitueerd op een prachtige locatie met een ruim uitzicht over de karakteristieke Commissaris de Vos van Steenwijklaan. Vanuit de woonkamer kijk je uit op de sfeervolle omgeving die dit deel van Meppel zo herkenbaar maakt.

Bouwjaar2026
Woonoppervlakte64 m2
EnergielabelA+++
Slaapkamers1
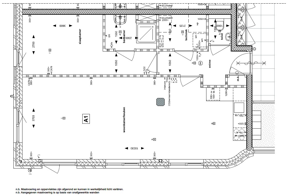
Foto’s 18 Plattegronden 1

Omschrijving

Op de begane grond bevindt zich dit karaktervolle en lichte appartement, waar comfort en uitstraling samenkomen. Het appartement is gesitueerd op een prachtige locatie met een ruim uitzicht over de karakteristieke Commissaris de Vos van Steenwijklaan. Vanuit de woonkamer kijk je uit op de sfeervolle omgeving die dit deel van Meppel zo herkenbaar maakt.

Via het centrale portaal stap je de hal van dit appartement in. De entree geeft toegang tot de ruime woonkamer met open keuken. De keuken is niet bij de prijs inbegrepen, zodat je zelf de vrijheid hebt om deze volledig naar wens samen te stellen. Het appartement is functioneel en ruim opgezet. De keuken heeft een praktische plek gekregen in de ruimte, zodat er voldoende ruimte overblijft voor een comfortabele eethoek en zithoek.

Vanuit de hal is er toegang tot de rustige slaapkamer, die direct toegang biedt tot een moderne badkamer en-suite. De badkamer is volledig uitgerust met een wastafel en douche, op de gang bevindt zich het separate toilet en ruime berging met plek voor je wasmachine en droger.

Kenmerken

Bouw
Type objectAppartement
Soort bouwNieuwbouw
Bouwjaar2026
Oppervlaktes en inhoud
Woonoppervlakte64 m2
Inhoud167 m3
Oppervlakte externe bergruimte0 m2
Indeling
Aantal kamers2
Aantal slaapkamers1
Locatie
Tuin
Heeft een achteromNee
Energieverbruik
EnergielabelA+++
CV ketel
CombiketelNee

Downloads

jpg

Meppel – Appartementen A01 – Plattegrond

Download

Andere bouwnummers

Verkocht onder voorbehoud

Meppel – Appartementen A23

€ 240.000,-

  • 45 m2
  • 1
Bekijk bouwnummer
Verkocht onder voorbehoud

Meppel – Appartementen A30

€ 245.000,-

  • 44 m2
  • 1
Bekijk bouwnummer
Verkocht onder voorbehoud

Meppel – Appartementen A29

€ 232.500,-

  • 44 m2
  • 1
Bekijk bouwnummer
Verkocht onder voorbehoud

Meppel – Appartementen A28

€ 232.500,-

  • 44 m2
  • 1
Bekijk bouwnummer
Verkocht onder voorbehoud

Meppel – Appartementen A27

€ 232.500,-

  • 44 m2
  • 1
Bekijk bouwnummer
Onder optie

Meppel – Appartementen A26

€ 250.000,-

  • 47 m2
  • 1
Bekijk bouwnummer
Verkocht onder voorbehoud

Meppel – Appartementen A25

€ 240.000,-

  • 47 m2
  • 1
Bekijk bouwnummer
Verkocht onder voorbehoud

Meppel – Appartementen A24

€ 240.000,-

  • 45 m2
  • 1
Bekijk bouwnummer
Verkocht onder voorbehoud

Meppel – Appartementen A22

€ 240.000,-

  • 45 m2
  • 1
Bekijk bouwnummer
Verkocht onder voorbehoud

Meppel – Appartementen A21

€ 240.000,-

  • 45 m2
  • 1
Bekijk bouwnummer

Makelaar

  • Groenmarkt 4
  • 7941 KT Meppel