Meppel – Appartementen A04

€ 335.000,-

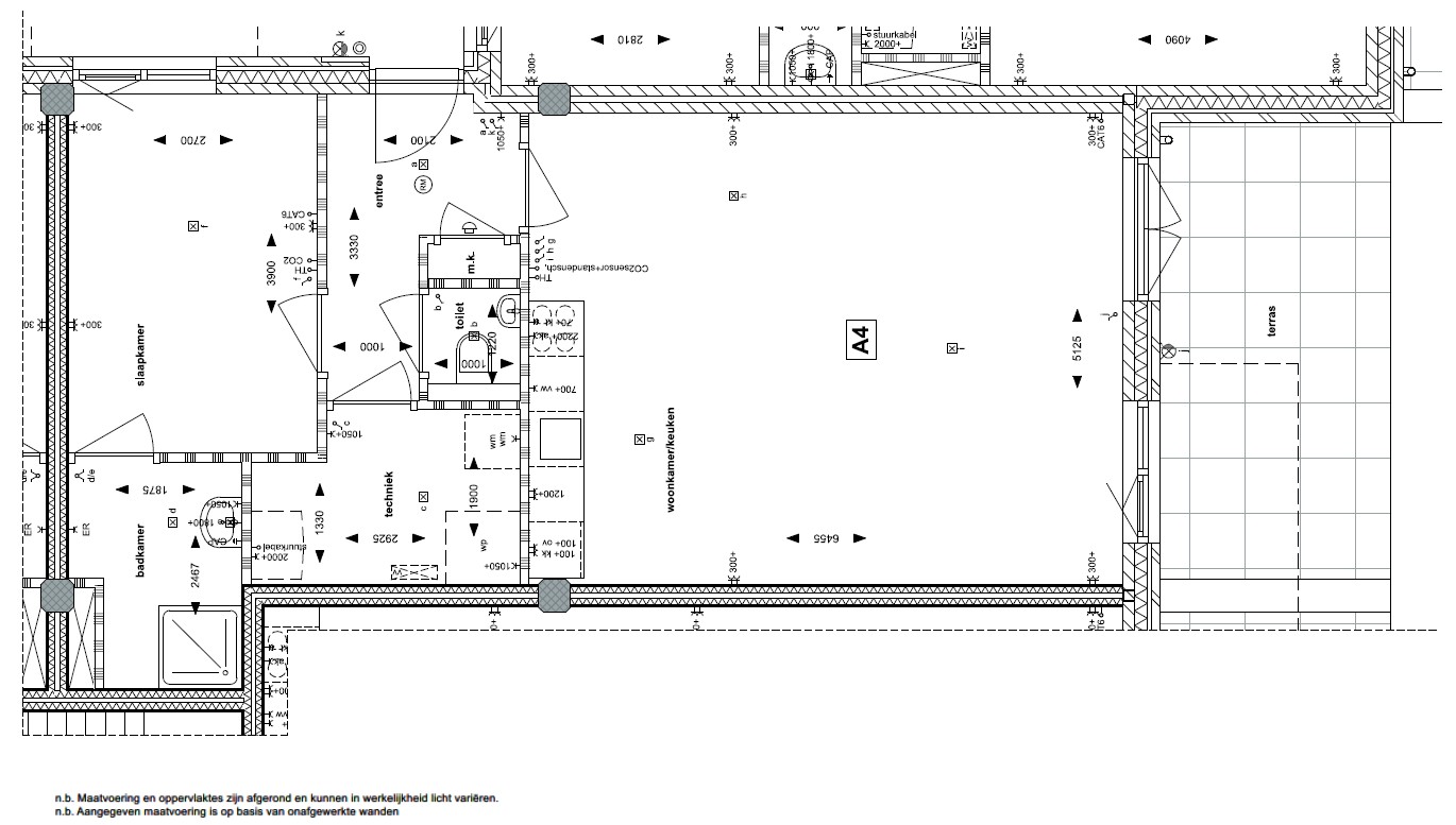
Op de begane grond ligt dit lichte en ruime appartement, met een doordachte indeling en een prettige sfeer. Vanuit de woonkamer heb je zicht op het ruime terras van circa 13 m², dat als verlengstuk van je leefruimte uitnodigt om heerlijk buiten te zitten en te genieten van de rust.

Bouwjaar2026
Woonoppervlakte64 m2
EnergielabelA+++
Slaapkamers1
Foto’s 10 Plattegronden 1

Omschrijving

Op de begane grond ligt dit lichte en ruime appartement, met een doordachte indeling en een prettige sfeer. Vanuit de woonkamer heb je zicht op het ruime terras van circa 13 m², dat als verlengstuk van je leefruimte uitnodigt om heerlijk buiten te zitten en te genieten van de rust.

Dit appartement beschikt over een eigen entree en een praktisch ingedeelde hal die toegang biedt tot de ruime woonkamer met open keuken. De keuken is niet bij de prijs inbegrepen, zodat je zelf de vrijheid hebt om deze volledig naar wens samen te stellen. De woning is functioneel én ruim opgezet, met een slimme indeling die zorgt voor een prettige leefruimte. Dankzij de doordachte positie van de keuken blijft er volop plaats voor een gezellige eethoek en zithoek.

Vanuit de hal is er toegang tot de slaapkamer, die direct toegang biedt tot een moderne badkamer en-suite. De badkamer is volledig uitgerust met een wastafel en douche, op de gang bevindt zich het separate toilet en ruime berging met plek voor je wasmachine en droger.

Kenmerken

Bouw
Type objectAppartement
Soort bouwNieuwbouw
Bouwjaar2026
Oppervlaktes en inhoud
Woonoppervlakte64 m2
Inhoud167 m3
Oppervlakte externe bergruimte0 m2
Indeling
Aantal kamers2
Aantal slaapkamers1
Locatie
Tuin
Type tuinZonneterras
OriënteringZuidwest
Heeft een achteromNee
Oppervlakte13 m2
Energieverbruik
EnergielabelA+++
CV ketel
CombiketelNee

Downloads

jpg

Meppel – Appartementen A04 – Plattegrond

Download

Andere bouwnummers

Verkocht onder voorbehoud

Meppel – Appartementen A23

€ 240.000,-

  • 45 m2
  • 1
Bekijk bouwnummer
Verkocht onder voorbehoud

Meppel – Appartementen A30

€ 245.000,-

  • 44 m2
  • 1
Bekijk bouwnummer
Verkocht onder voorbehoud

Meppel – Appartementen A29

€ 232.500,-

  • 44 m2
  • 1
Bekijk bouwnummer
Verkocht onder voorbehoud

Meppel – Appartementen A28

€ 232.500,-

  • 44 m2
  • 1
Bekijk bouwnummer
Verkocht onder voorbehoud

Meppel – Appartementen A27

€ 232.500,-

  • 44 m2
  • 1
Bekijk bouwnummer
Onder optie

Meppel – Appartementen A26

€ 250.000,-

  • 47 m2
  • 1
Bekijk bouwnummer
Verkocht onder voorbehoud

Meppel – Appartementen A25

€ 240.000,-

  • 47 m2
  • 1
Bekijk bouwnummer
Verkocht onder voorbehoud

Meppel – Appartementen A24

€ 240.000,-

  • 45 m2
  • 1
Bekijk bouwnummer
Verkocht onder voorbehoud

Meppel – Appartementen A22

€ 240.000,-

  • 45 m2
  • 1
Bekijk bouwnummer
Verkocht onder voorbehoud

Meppel – Appartementen A21

€ 240.000,-

  • 45 m2
  • 1
Bekijk bouwnummer

Makelaar

  • Groenmarkt 4
  • 7941 KT Meppel