Meppel – Appartementen A03

€ 329.000,-

Op de begane grond bevindt zich dit lichte en ruime appartement, dat direct opvalt door zijn prettige indeling en fijne sfeer. Dankzij de raampartijen geniet je hier van veel natuurlijk daglicht en een aangenaam gevoel van ruimte.

Bouwjaar2026
Woonoppervlakte63 m2
EnergielabelA+++
Slaapkamers1
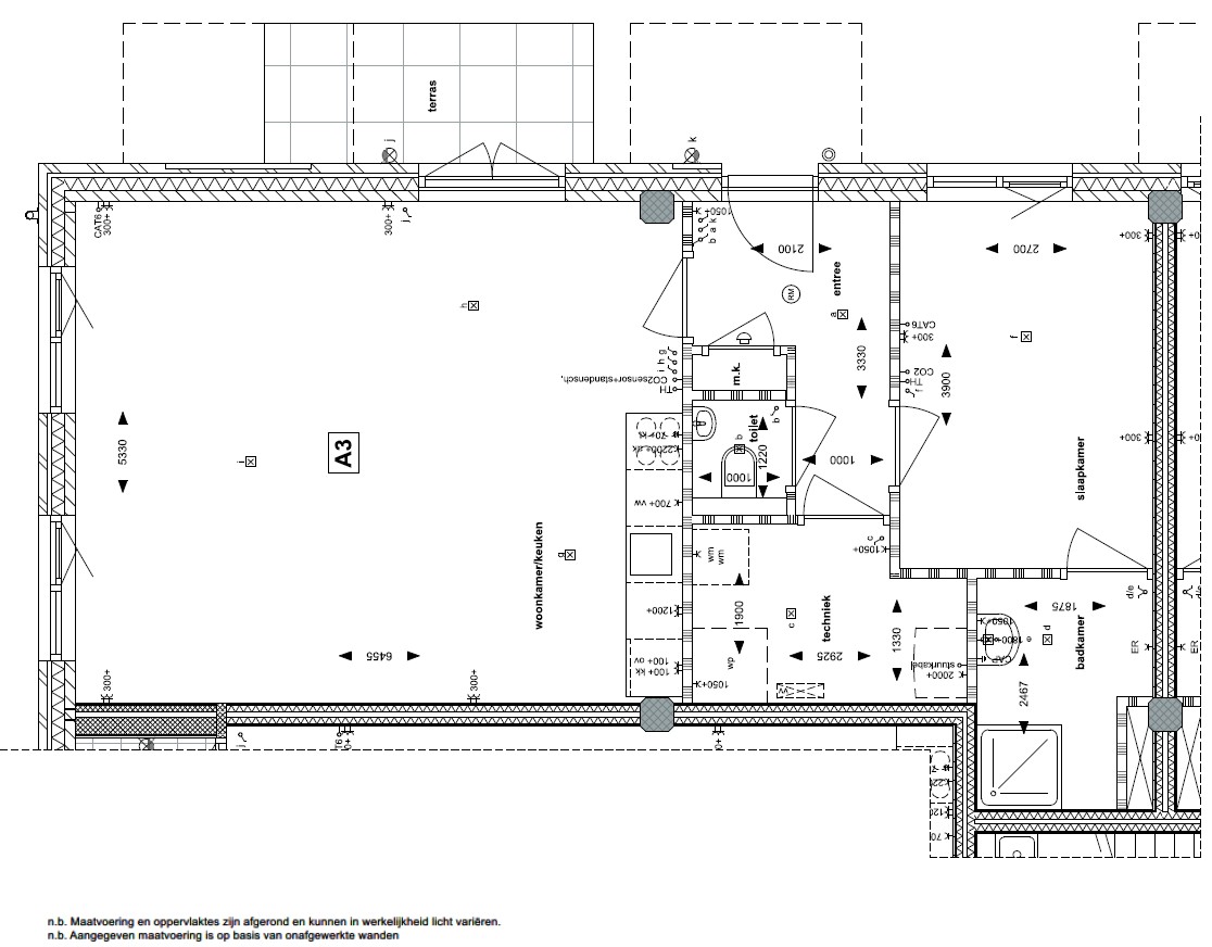
Foto’s 10 Plattegronden 1

Omschrijving

Op de begane grond bevindt zich dit lichte en ruime appartement, dat direct opvalt door zijn prettige indeling en fijne sfeer. Dankzij de raampartijen geniet je hier van veel natuurlijk daglicht en een aangenaam gevoel van ruimte.

Het appartement is prachtig gesitueerd aan het groene, mandelige parkeerhof, waardoor je niet alleen uitkijkt op een fraai stukje groen, maar ook profiteert van een rustige en verzorgde woonomgeving.

Dit appartement heeft een eigen entree. De hal geeft toegang tot de ruime woonkamer met open keuken. De keuken is niet bij de prijs inbegrepen, zodat je zelf de vrijheid hebt om deze volledig naar wens samen te stellen. Het appartement is functioneel en ruim opgezet. Door de slimme plek van de keuken blijft er voldoende ruimte over voor een uitnodigende eethoek en zithoek.

Vanuit de hal is er toegang tot de slaapkamer, die direct toegang biedt tot een moderne badkamer en-suite. De badkamer is volledig uitgerust met een wastafel en douche, op de gang bevindt zich het separate toilet en ruime berging met plek voor je wasmachine en droger.

Kenmerken

Bouw
Type objectAppartement
Soort bouwNieuwbouw
Bouwjaar2026
Oppervlaktes en inhoud
Woonoppervlakte63 m2
Inhoud166 m3
Oppervlakte externe bergruimte0 m2
Tuinoppervlakte5 m2
Indeling
Aantal kamers2
Aantal slaapkamers1
Locatie
Tuin
Type tuinZonneterras
OriënteringZuidoost
Heeft een achteromNee
Oppervlakte5 m2
Energieverbruik
EnergielabelA+++
CV ketel
CombiketelNee

Downloads

jpg

Meppel – Appartementen A03 – Plattegrond

Download

Andere bouwnummers

Verkocht onder voorbehoud

Meppel – Appartementen A23

€ 240.000,-

  • 45 m2
  • 1
Bekijk bouwnummer
Verkocht onder voorbehoud

Meppel – Appartementen A30

€ 245.000,-

  • 44 m2
  • 1
Bekijk bouwnummer
Verkocht onder voorbehoud

Meppel – Appartementen A29

€ 232.500,-

  • 44 m2
  • 1
Bekijk bouwnummer
Verkocht onder voorbehoud

Meppel – Appartementen A28

€ 232.500,-

  • 44 m2
  • 1
Bekijk bouwnummer
Verkocht onder voorbehoud

Meppel – Appartementen A27

€ 232.500,-

  • 44 m2
  • 1
Bekijk bouwnummer
Onder optie

Meppel – Appartementen A26

€ 250.000,-

  • 47 m2
  • 1
Bekijk bouwnummer
Verkocht onder voorbehoud

Meppel – Appartementen A25

€ 240.000,-

  • 47 m2
  • 1
Bekijk bouwnummer
Verkocht onder voorbehoud

Meppel – Appartementen A24

€ 240.000,-

  • 45 m2
  • 1
Bekijk bouwnummer
Verkocht onder voorbehoud

Meppel – Appartementen A22

€ 240.000,-

  • 45 m2
  • 1
Bekijk bouwnummer
Verkocht onder voorbehoud

Meppel – Appartementen A21

€ 240.000,-

  • 45 m2
  • 1
Bekijk bouwnummer

Makelaar

  • Groenmarkt 4
  • 7941 KT Meppel