Meppel – Appartementen A14

€ 369.000,-

Wonen in een appartementencomplex, maar toch genieten van twee volledige verdiepingen? Dat kan in deze maisonnette!

Bouwjaar2026
Woonoppervlakte74 m2
EnergielabelA+++
Slaapkamers3
Foto’s 10 Plattegronden 2

Omschrijving

Wonen in een appartementencomplex, maar toch genieten van twee volledige verdiepingen? Dat kan in deze maisonnette!

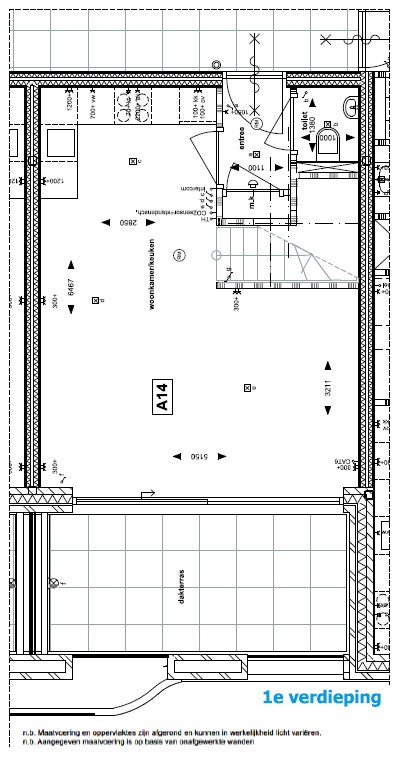
Vanuit het centrale portaal stap je de hal van deze bijzonder maisonnette in. De hal geeft toegang tot de woonkamer en het separate toilet. De goed bemeten woonkamer met open keuken geeft je uitzicht op de karakteristieke Commissaris de Vos van Steenwijklaan of op het mandelige parkeerhof. De keuken (zonder keukeninrichting) heeft een praktische plek gekregen in de ruimte, zodat er voldoende ruimte over blijft voor een heerlijke eethoek en zithoek.
De woonkamer geeft tevens toegang tot het balkon of terras.

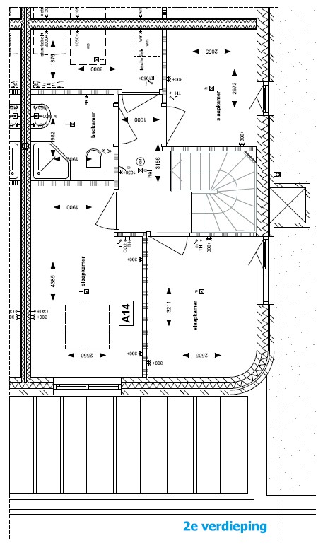
Op de eerste verdieping bevinden drie comfortabele slaapkamers. De badkamer is modern en praktisch ingericht, voorzien van wastafel, douche en toilet. Daarnaast biedt een ruime berging handige extra opslagruimte.

Kenmerken

Bouw
Type objectAppartement
Soort bouwNieuwbouw
Bouwjaar2026
Type dakPlat dak
IsolatievormenVolledig geïsoleerd
Oppervlaktes en inhoud
Woonoppervlakte74 m2
Inhoud197 m3
Oppervlakte externe bergruimte0 m2
Indeling
Aantal kamers4
Aantal slaapkamers3
Locatie
LiggingIn centrum, In woonwijk
Tuin
Heeft een achteromNee
Energieverbruik
EnergielabelA+++
CV ketel
CombiketelNee

Downloads

jpg

Meppel – Appartementen A14 – Plattegrond

Download
jpg

Meppel – Appartementen A14 – Plattegrond 2

Download

Andere bouwnummers

Verkocht onder voorbehoud

Meppel – Appartementen A23

€ 240.000,-

  • 45 m2
  • 1
Bekijk bouwnummer
Verkocht onder voorbehoud

Meppel – Appartementen A30

€ 245.000,-

  • 44 m2
  • 1
Bekijk bouwnummer
Verkocht onder voorbehoud

Meppel – Appartementen A29

€ 232.500,-

  • 44 m2
  • 1
Bekijk bouwnummer
Verkocht onder voorbehoud

Meppel – Appartementen A28

€ 232.500,-

  • 44 m2
  • 1
Bekijk bouwnummer
Verkocht onder voorbehoud

Meppel – Appartementen A27

€ 232.500,-

  • 44 m2
  • 1
Bekijk bouwnummer
Onder optie

Meppel – Appartementen A26

€ 250.000,-

  • 47 m2
  • 1
Bekijk bouwnummer
Verkocht onder voorbehoud

Meppel – Appartementen A25

€ 240.000,-

  • 47 m2
  • 1
Bekijk bouwnummer
Verkocht onder voorbehoud

Meppel – Appartementen A24

€ 240.000,-

  • 45 m2
  • 1
Bekijk bouwnummer
Verkocht onder voorbehoud

Meppel – Appartementen A22

€ 240.000,-

  • 45 m2
  • 1
Bekijk bouwnummer
Verkocht onder voorbehoud

Meppel – Appartementen A21

€ 240.000,-

  • 45 m2
  • 1
Bekijk bouwnummer

Makelaar

  • Groenmarkt 4
  • 7941 KT Meppel