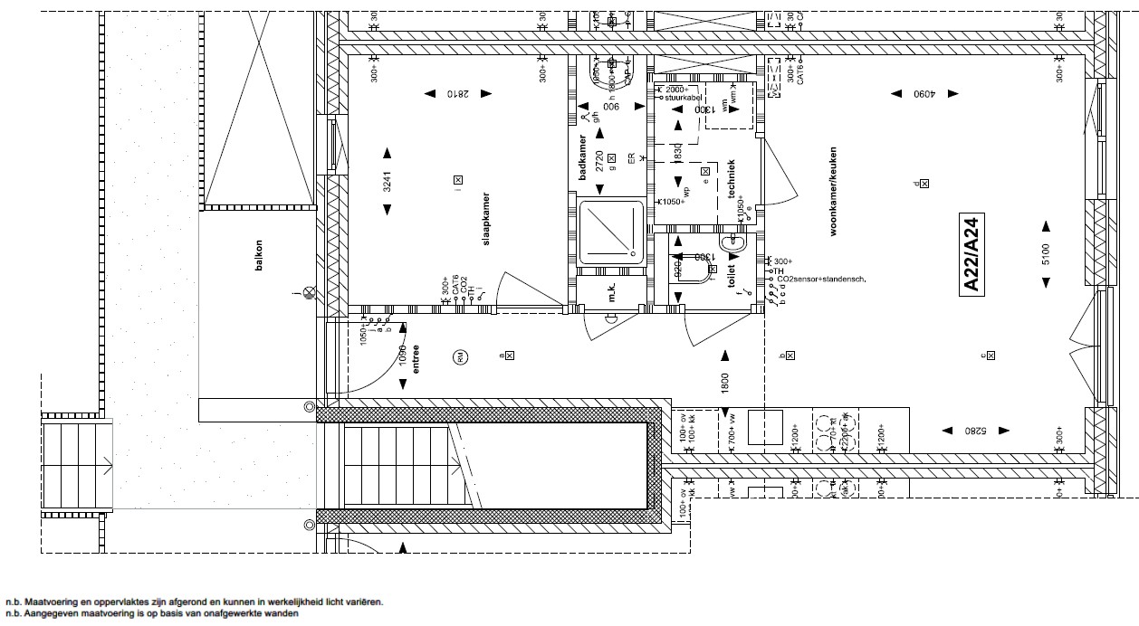
Omschrijving

Op de eerste verdieping, ligt dit prettige en slim ingedeelde appartement.

Via de galerij krijg je toegang tot dit appartement. Achter de voordeur schuilt een prettig appartement met een lichte woonkamer. De keuken heeft een praktische plek gekregen in de ruimte, zodat er volop ruimte overblijft voor een comfortabele eethoek en zithoek. De keuken is niet bij de prijs inbegrepen, zodat je zelf de vrijheid hebt om deze volledig naar wens samen te stellen.

Het appartement is functioneel opgezet. De slaapkamer heeft een badkamer en-suite en het toilet is separaat geplaatst. Het appartement is functioneel en doordacht ingedeeld, waardoor elke vierkante meter optimaal wordt benut.

Het appartement beschikt over een eigen buitenruimte.

Kenmerken

Bouw
Type objectAppartement
Soort bouwNieuwbouw
Bouwjaar2026
Oppervlaktes en inhoud
Woonoppervlakte45 m2
Inhoud117 m3
Oppervlakte externe bergruimte0 m2
Tuinoppervlakte4 m2
Indeling
Aantal kamers2
Aantal slaapkamers1
Locatie
Tuin
Type tuinZonneterras
OriënteringNoordoost
Heeft een achteromNee
Oppervlakte4 m2
Energieverbruik
EnergielabelA+++
CV ketel
CombiketelNee

Downloads

jpg

Meppel – Appartementen A22 – Plattegrond

Download

Andere bouwnummers

Verkocht onder voorbehoud

Meppel – Appartementen A23

€ 240.000,-

  • 45 m2
  • 1
Bekijk bouwnummer
Verkocht onder voorbehoud

Meppel – Appartementen A30

€ 245.000,-

  • 44 m2
  • 1
Bekijk bouwnummer
Verkocht onder voorbehoud

Meppel – Appartementen A29

€ 232.500,-

  • 44 m2
  • 1
Bekijk bouwnummer
Verkocht onder voorbehoud

Meppel – Appartementen A28

€ 232.500,-

  • 44 m2
  • 1
Bekijk bouwnummer
Verkocht onder voorbehoud

Meppel – Appartementen A27

€ 232.500,-

  • 44 m2
  • 1
Bekijk bouwnummer
Onder optie

Meppel – Appartementen A26

€ 250.000,-

  • 47 m2
  • 1
Bekijk bouwnummer
Verkocht onder voorbehoud

Meppel – Appartementen A25

€ 240.000,-

  • 47 m2
  • 1
Bekijk bouwnummer
Verkocht onder voorbehoud

Meppel – Appartementen A24

€ 240.000,-

  • 45 m2
  • 1
Bekijk bouwnummer
Verkocht onder voorbehoud

Meppel – Appartementen A21

€ 240.000,-

  • 45 m2
  • 1
Bekijk bouwnummer
Verkocht onder voorbehoud

Meppel – Appartementen A20

€ 252.500,-

  • 47 m2
  • 1
Bekijk bouwnummer

Makelaar

  • Groenmarkt 4
  • 7941 KT Meppel